FORMEX TECH SOLUTIONS

Rebar Detailing & Estimation

At FORMEX TECH SOLUTIONS, we provide comprehensive Rebar Detailing and Estimation services tailored to the needs of modern construction projects. We work closely with construction companies, structural consultants, rebar fabricators, steel erectors, and general contractors to ensure precision at every stage of the project.
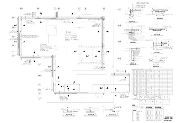
Our experienced detailing engineers specialize in preparing accurate Rebar Shop Drawings and Bar Bending Schedules (BBS). Every project is executed in compliance with recognized international standards such as ASTM, ACI, and CRSI. By following these industry guidelines, we ensure quality, safety, and consistency across all our deliverables.
Our rebar engineering team maintains clear communication with on-site technical teams to quickly resolve design queries, eliminate discrepancies, and prevent costly delays. We believe that coordination and clarity are key to smooth project execution.

At FORMEX TECH SOLUTIONS, our skilled detailers create clear and precise shop drawings that define the correct placement of reinforcing steel. These drawings include detailed information on bar shapes, bends, lap splices, and dimensions specific to your project requirements. By identifying constructability issues early—before fabrication begins—we help minimize material wastage and avoid rework.

Our detailed drawings not only guide fabrication but also make on-site installation easier. Contractors and ironworkers can clearly visualize the structure and understand exactly where each bar needs to be placed. This streamlined approach reduces installation time, improves accuracy, and ultimately lowers overall project costs.

Scroll to Top